
基本情况介绍
方案实施方类别:影音设计
地理位置:广州白云区同和自建别墅
用户需求的基本描述:业主是个商业大家族,一直很想打造一间属于家族的休闲娱乐空间,一家人其乐融融在一起享受美好时光!于是决定把影院和KTV搬到家里。因为是自建型别墅,空间面积足够大,单是影院的面积就有146平方米。因此希望有巨幕的效果,观影座位有20个,观影效果也要能够媲美外面商业影城的效果。独立的KTV室也是大包间,约55平方米,听DJ嗨歌时能够动感十足。
整体资金投入:整体投入167万(含影音设备+智能+硬装+灯具等)
周边布局概括性描述:独立自建别墅群
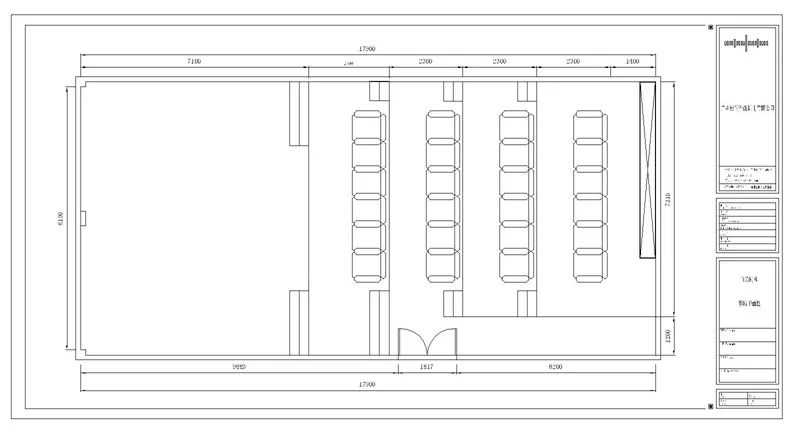
视听室空间信息:影音室长17.9米,宽8.19米,面积约146.6平方米
;KTV室长8.5米,宽6.5米,面积约55平方米
公司简称及介绍:索丰智能
广州索丰音响有限公司成立于2011年是全国知名的全宅智能影音系统服务企业。主要的服务项目是家庭影院KTV系统、智能家居系统、智能机电一体化系统、监控安防系统、全宅背景音乐系统等。主要服务于广佛两地,拥有高素质的、具有国际设计和服务理念的优秀客户服务团队,能更好的满足不同客户的定制化需求。

索丰智能创始人:梁业烽先生
专业从事智能影音系统20年
2000年进入行业从事技术工作到今天一直在音响行业上默默工作,因为热爱,所以专业。欢迎朋友前来品茶交流。
所用器材列表
影院设备
信号源设备
4K蓝光机:OPPOUDP-205网络播放机/海美迪H10
4K投影机:奥图码OPTOMAHSF8379;
4K画框透声幕:ELITESCREE亿立290寸幕布
音响设备
影院音响:主音箱JBL-4732×2只
中置:JBL-4722N×1只
环绕音箱:JBL-8320×6只
全景声音箱:JBL-8320×4只
低音炮:JBL-4641×4只
解码器:马兰士AV8802A
功放:CROWMXLI1500×5台
分频功放:CROWNDSI4000×2台
电源时序管理器:BYPASS8010×1台
线材:GOLDENSOUNDHDMI线
KTV设备
投影机:奥图码HSF8420高清3D投影机
幕布:ELITESCREE亿立135寸4K画框幕
KTV设备
点歌系统:EVIDIO视易点歌
挂墙点歌屏:BORAY22寸
专业卡拉OK音箱:JBLKP-6012×6只
低音炮:JBLKP618S×1只
卡拉OK前级效果器:BYPASSHD-1001×台
卡拉OK后级功放:CROWMXLI3500×4台
无线话筒:BBSF30×2套
智能系统
Control4(含控制影院室、KTV室、茶室、灯光和空调系统)
背景音乐系统
功放:DSPPAMP310u
喇叭:AUXDIOAUX606II×4只
JBL-8281×2只
后级功放:CROWMXLI1500×1台
影院构建过程、声学和光学处理及特别设计
影音室设计
该影音室方案空间有146平方米大,业主要求与一线影院一模一样的感觉,所以设计师以商业影院为标准,打造了一流的影院级空间。由于使用要求需容纳20人,所以针对每个位置都进行声场调整,让每个位置的声音都清晰震撼,不会出现声场不均的情况。

影音室设计图


影音室效果图
为了实现与一线影院般的效果,音箱采用影院级三分频银幕线阵列。银幕扩展补偿和集中覆盖技术可以使整个声场达到很好的覆盖,同时专业的高频号角矫正技术,可以弥补穿孔幕布高频散射。




左右滑动查看更多

为了实现强撼的低音效果,足足采用了4只JBL4641影院低音炮,该低音炮应用先进的VGC技术(孔隙冷却技术),能使低音收缩更加迅速有力。前后各2只低音炮的摆放位置可以完美的覆盖整个声场,无论位于哪个位置,低音感与包围感都震撼有力。


设计方面为了能够让观影更有电影院的感觉,在进入影院入口做了个扶手的楼梯,每三个阶梯就有一个地脚灯,以方便在观影过程中有人进出而看清视线。同时,电动沙发座位的每个阶梯上都设计了灯带,以免踩空,造成伤害。

KTV室设计

KTV室设计图


KTV室设计效果图
KTV室采用6只JBL专业演出卡拉OK音箱,再搭配一只强劲的JBL低音炮。精确的指向性能有效降低房间内系统啸叫发生,清晰细腻的中高音频能突显人声浑厚磁性,强劲有力的超低音频更能直击心灵深处。
其中2只JBL音箱采用台唇补声的方式,以弥补KTV中部高音覆盖不全的缺陷。使得无论哪个方位,何种方向,均能获得清晰的人声,飙高音更加轻松自如。

灯光系统是营造唱歌氛围重要的环节。在此,我们采用最流行的KTV智能包房激光灯光,全电脑自动编程控制,并且能够自动随音乐而变化,光炫夺目,营造现场舞台灯效,更加享受K歌乐趣。


系统调试与设计者心得
影音室方案为9.4.4声道布线,采用JBL影院级音箱打造的影院系统,前置音箱隐藏在幕布后方,顶置音箱融入黑色聚酯纤维板之中,让你不会刻意注意到它的存在。

由于该空间足有146平方米,投影幕布就选用了290寸的4K画框透声幕。290寸在私人影院领域里基本上很少见,幕布单高度就高达3.7米,需要整整5个人合作才能将其装好。


声学处理方面,由于该空间面积较大,容易造成混响时间过长,因此,在装修时针对此块进行较多的吸音处理,后期装修完毕后再次进行声学测试,令我们欣慰的是,房间没有明显的兼并现象,不构成失真驻波,但在50-60Hz附近会有一定的低频共振,但好在通过后期均衡处理,线性切除一定的低频,使低音收缩更加干净,回弹速度更加迅速。

整体风格与效果
影院整体的风格采用当今最流行的现代简约风,利用简约灯带线条和软包,给人营造一种现代科幻的影院风格。天花采用纯黑色的聚酯纤维板,在吸音的同时能够突出墙体的灯光效果。地板采用木质,能够吸收部分高音,让进入耳朵的声音更柔和一些。沙发也是选的接近原木色的,使其与地板形成整体呼应,不那么突出。


考虑到影院面积大,在配置方面采用全景声最高等级9.4.4系统,让声音能更加原汁原味的传递到每一个座位的观影者耳朵里。为了不突出音箱,使整体风格一致,所有的音箱均采用隐藏式空腔设计,同时巨幕也采用更细腻的透声幕布,在声音原汁原味传递的同时保证了画面的色彩及质感不受透声幕布的影响。

KTV的整体风格简约流畅,墙体采用纯进口软包,地板则采用木质地板,在吸收部分声音的同时,更便于打扫。沙发采用KTV专用的进口牛皮沙发,颜色米黄浅色系,与整体软包颜色相近,更加有整体感。
天花造型是原木的波浪,用光纤线打造成波浪星空的效果,同时在四角均安装上激光灯,让KTV氛围更加浓烈。