
实施方类别:影音设计师
案例类别:定制影院
位置及周边概括性描述:桃源小镇沁兰苑
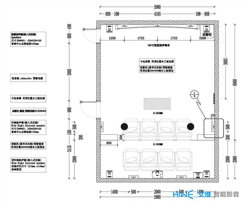
空间信息(长×宽):8060×5980×2600mm
项目进度:已完工

设计师:张大森
设计/施工公司:浙江艾维科技有限公司

7.1声道私人影院系统+4.0卡拉OK系统
音频设备
音箱:JBLB-8IW8”IN-WALL*7只
低音炮:BAGENDSVS-600
4K投影机:SONYVPL-VW278
播放机:MYMOVM103D4K多媒体播放机
功放:ONKYOTX-NR595
硬盘:Seagate2T硬盘
投影幕布:YKscreenWCB-TF120高清画框透声定制幕
其他
线材及辅料等
卡拉OK系统设备
全频音箱:JBLKLS-12
辅助音箱:JBLKLS-10
功放:JBLX6/X4
效果器:
无线话筒:KBSK-3600
点歌机:视易D-66
点歌屏:视易22寸
电源时序器:ABLV1089
其他
线材及辅料等

现场情况
位于桃源小镇沁兰苑的48平米左右的私人影院工程已完成,这间兼顾家庭影院视听与卡拉OK的影音娱乐空间,采用简洁隐藏式设计风格,搭配JBL极品系列嵌入式音响系统和4声道卡拉OK系统。干净整洁的影音娱乐空间,大画面逼真视觉体验,让影音娱乐完美融合。


因为兼顾影院与卡拉OK两套系统,声音环境与声场的控制就显得十分必要。声学设计采用隐藏式声学处理,通过声学软件测试计算出吸声与扩散的区域,在私人影院装修过程中进行灵活调整。外饰由透声布封面,搭配灰色系迎合影音室深沉黯哑的环境氛围,点缀木色装饰线。

效果图

顶面没有采用星空顶设计,而是以不规则造型设计处理顶面中高频反射波。灯饰点缀浅色顶面,与地面颜色相呼应。
这间影音室由JBL极品系列组建7.1声道影院系统。音箱均采用JBLB-8IW,每只音箱都可以让无形的美妙音乐包围着听众,且都是拥有THXUltra2认证的音箱,搭配经典的BAGEND低音,强劲真实的音效绝对满意这个选择。

幕布使用的是YKscreenWCB-TF120高清画框透声定制幕,四周综合平面定位,确保幕布受力均匀,有效消除“V”型波纹,使幕面非常平整、耐用,幕布形成绝对纯平的镜面效果。

在激光4K投影机不断出新的今天,SONYVPL-VW278这台机器,原生4096x2160分辨率的SonySXRD反射式液晶技术,色彩饱满,对比度高,提供更为干净利落的画面,不会锐化画面噪点。两个HDMI端口,均兼容,较低的26dB的可闻噪音指标。
